Williamsburg | UBIQ New York

Williamsburg

Commercial Property

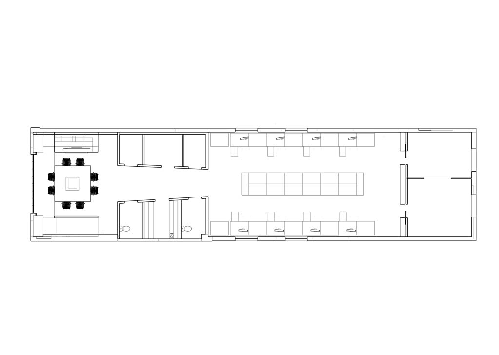
A warehouse previously used by mechanics and artists which has been converted into a contemporary architectural studio. No expense has been spared for this 300k renovation with custom lights, skylights, oak floors, new steel windows through-out, a/c, heating, speakers, sandblasted bricks etc. 25x100 - 25' of frontage. Prime North Williamsburg walking distance from train and ferry to Manhattan
willy-overview

logo-bianco

JOIN UBIQ INVESTMENT CLUB

Keep up to date with the latest news about NYC real estate market




    I have read and understood the Privacy Policy